- Woonoppervlakte
- Circa 122 m²
- Perceeloppervlakte
- Circa 228 m²
- Bouwjaar
- Gebouwd in 2025
- Aantal kamers
- 4 kamers (3 slaapkamers)
Nieuw te bouwen, ruime hoekwoning in Lottum Vanaf € 375.000 v.o.n. (prijs op basis van deze variant)
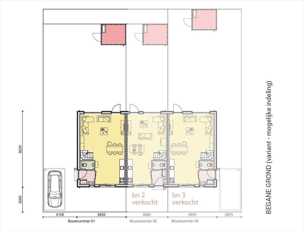
Aan de Ruuj 16 in Lottum wordt binnenkort gestart met de bouw van een nieuwbouwproject bestaande uit drie woningen. Deze ruime en moderne hoekwoning ligt op een perceel van 238m2 en is de laatste beschikbare woning binnen het project.
Doordat de woning nog gebouwd moet worden, heeft u als koper volop mogelijkheden om deze geheel naar eigen wens in te delen en af te werken. Daarmee vormt dit huis een ideale basis voor zowel gezinnen als senioren die op zoek zijn naar ruimte, comfort en flexibiliteit.
VRIJ INDEELBAAR VÓÓR START BOUW
Tot aan de start van de bouw is deze woning vrij indeelbaar. Zowel de indeling als de keukenopstelling en badkamer kunnen nog geheel naar uw wensen worden aangepast. In onze brochure vindt u meerdere varianten die we samen kunnen bespreken, zodat u deze woning volledig naar uw eigen smaak kunt realiseren.
De genoemde prijs is gebaseerd op deze specifieke variant, inclusief hoogwaardige basisafwerking zoals hieronder omschreven.
INDELING EN AFWERKING
De woning krijgt een royale woonkamer aan de tuinzijde met een grote raampartij, waardoor er veel natuurlijk licht binnenvalt. De open keuken – standaard voorzien van inbouwapparatuur – vormt een gezellige centrale plek in huis.
De plafonds op de begane grond en verdieping worden voorzien van structuur spuitwerk. Alle wanden, inclusief die op zolder, worden behangklaar opgeleverd. Voor het toilet en de badkamer kunt u zelf wand- en vloertegels uitkiezen in onze toonzaal.
Op de eerste verdieping bevinden zich drie ruime slaapkamers en een moderne badkamer met inloopdouche, wastafel en toilet. Via een vaste trap bereikt u de ruime bergzolder – ideaal voor extra opslagruimte.
DUURZAAM EN ENERGIEZUINIG WONEN
De woning wordt gebouwd volgens de laatste normen op het gebied van duurzaamheid en energieverbruik en krijgt energielabel A+++.
Standaard inbegrepen zijn:
· Warmtepompinstallatie
· Zonnepanelen
· Keuken met inbouwapparatuur
· Compleet sanitair
· Vrijstaande tuinberging van ca. 6 m²
Let op: de woning wordt opgeleverd exclusief stoffering, wand- en vloerafwerking.
TUIN EN LIGGING
De woning krijgt een zonnige tuin op het oost-zuidoosten en beschikt over een ruime oprit. Een fijne plek om buiten te leven, te ontspannen of te tuinieren.
Meer weten? Bent u op zoek naar een comfortabele en duurzame woning met volop ruimte, flexibiliteit en persoonlijke inbreng voor het hele gezin óf juist een toekomstbestendige woning voor uw seniorenjaren?
En wilt u profiteren van de unieke kans om de laatste woning van dit project te bemachtigen? Neem dan contact met ons op voor een vrijblijvende afspraak. Wij vertellen u graag meer over de mogelijkheden van deze woning en denken graag met u mee over uw ideale indeling. Lees de volledige omschrijving
Overdracht
- Vraagprijs
- € 375.000 vrij op naam
- Status
- Verkocht
Bouw
- Object type
- Eengezinswoning, hoekwoning
- Soort bouw
- Nieuwbouw
- Bouwjaar
- 2025
Oppervlakte en inhoud
- Woonoppervlakte
- 122 m²
- Perceeloppervlakte
- 228 m²
- Inhoud
- 427 m³
- Externe bergruimte
- 6 m²
Indeling
- Aantal kamers
- 4 kamers (3 slaapkamers)
- Aantal badkamers
- 1 badkamer en 1 apart toilet
- Badkamervoorzieningen
- Inloopdouche en wastafel
- Aantal woonlagen
- 2 woonlagen en een zolder
- Voorzieningen
- Glasvezelkabel, mechanische ventilatie, TV kabel, en zonnepanelen
Energie
- Energielabel
- A
- Isolatie
- Volledig geïsoleerd
- Verwarming
- Warmtepomp
- Warm water
- Elektrische boiler
Buitenruimte
- Ligging
- In woonwijk
- Tuin
- Achtertuin
- Afmetingen achtertuin
- 1 m² (1,00 meter diep en 1,00 meter breed)
- ligging tuin
- Gelegen op het zuidoosten bereikbaar via achterom
Bergruimte
- Schuur / berging
- Vrijstaande houten berging
- Voorzieningen
- Elektra
Parkeergelegenheid
- Soort parkeergelegenheid
- Op eigen terrein en openbaar parkeren
Energieverbruik in Lottum
Energielabel deze woning
Energielabel A
Publicatie energielabel:
Stroomverbruik per jaar
(Gemiddelde hoekwoning in Lottum)
Gasverbruik per jaar
(Gemiddelde hoekwoning in Lottum)
* Cijfers zijn afkomstig van het CBS en bedoeld als indicatie en kunnen verschillen voor deze woning
Indicatie hypotheeklasten
Eigen inleg:
Spaargeld / overwaarde
Rente:
Laagste 10-jaars rente
Laagste 10-jaars rente
2,75% - Centraal Beheer Groen... - NHG
3,04% - Argenta Groen Hypothee... - 80%
Laagste 20-jaars rente
3,18% - Argenta Groen Hypothee... - NHG
3,39% - Argenta Groen Hypothee... - 80%
Laagste 30-jaars rente
3,35% - Argenta Groen Hypothee... - NHG
3,56% - Argenta Groen Hypothee... - 80%
Hypotheek:
Bruto maandlasten: € 0 p/m
Netto maandlasten: € 0 p/m
Hoe berekenen we dit?
Het rentepercentage is gebaseerd op de laagste 10 jaars vaste rente voor één hypotheekdeel. De vermelde rente (2.75% met NHG) is gecontroleerd op 29-10-2025. Deze berekening is gebaseerd op een annuïteitenhypotheek die volledig wordt afgelost, waarbij de maandlasten gedurende de gehele looptijd gelijk blijven. De werkelijke rente en netto maandlasten kunnen variëren, afhankelijk van uw persoonlijke situatie en de hypotheekverstrekker. Raadpleeg een financieel adviseur voor een nauwkeurige berekening en advies. Aan deze berekening kunnen geen rechten worden ontleend; het dient enkel als indicatie.
Documentatie
Kadastrale kaart
Leefomgeving
Brochure
Plattegronden PDF
Bezichtiging
Bod uitbrengen
Waardebepaling
Zoekopdracht
Alles downloaden
Zonnegrenzen bekijken
Op de kaart
Inwoners in Lottum
Cijfers voor postcodegebied 5973
- Totaal aantal inwoners
- 1955 inwoners
- Mannen
- 52%
- Vrouwen
- 48%
Inwoners in Lottum
Cijfers voor postcodegebied 5973
- tot 15 jaar
- 14%
- 15 tot 25 jaar
- 12%
- 25 tot 35 jaar
- 19%
- 45 tot 65 jaar
- 33%
- 65 en ouder
- 23%
Huishoudens in Lottum
Cijfers voor postcodegebied 5973
- Eenpersoons zonder kinderen
- 27%
- Meerpersoons zonder kinderen
- 37%
- Huishoudens zonder kinderen
- 64%
Huishoudens in Lottum
Cijfers voor postcodegebied 5973
- Huishoudens met één kind
- 4%
- Huishoudens met meerdere kinderen
- 32%
- Huishoudens met kinderen
- 36%
Woningen in Lottum
Cijfers voor postcodegebied 5973
- Woningen voor 1945
- 19%
- Woningen tussen 1945 en 1965
- 20%
- Woningen tussen 1965 en 1975
- 20%
- Woningen tussen 1975 en 1985
- 15%
- Woningen tussen 1985 en 1995
- 9%
Woningen in Lottum
Cijfers voor postcodegebied 5973
- Woningen tussen 1995 en 2005
- 11%
- Woningen tussen 2005 en 2015
- 4%
- Woningen na 2015
- 1%
- Huurwoningen
- 20%
- Koopwoningen
- 80%
Overige in Lottum
Cijfers voor postcodegebied 5973
- Gemiddelde WOZ waarde
- € 273.000,-
- Personen onder de 65 met uitkering
- 4%
Overige in Lottum
Cijfers voor postcodegebied 5973
- Adressen per km²
- 177
- Stedelijkheid (schaal 1 op 5)
- 20%
Korte feiten over Lottum
Lottum is een dorp in de gemeente Horst aan de Maas, in de Nederlandse provincie Limburg. Het dorp heeft ongeveer 2.010 inwoners en een oppervlakte van 2226 ha en ligt hemelsbreed ongeveer 10 kilometer ten noorden van Venlo, aan de rivier de Maas en behoorde vroeger tot de gemeente Grubbenvorst, die in 2001 is gefuseerd met de gemeente Horst aan de Maas.
CoMaCon Makelaardij
Indien u vragen heeft of u wilt een bezichtiging inplannen, dan kunt u gebruik maken van het formulier hiernaast. Er zal daarna op korte termijn contact met u worden opgenomen.
Contact opnemen
Comacon Makelaardij
Bij Comacon Makelaardij krijgt u meer dan alleen een makelaar. Dankzij onze unieke combinatie van vastgoedervaring en bouwkundige achtergrond, bieden wij een totaalpakket dat verder gaat dan de standaard dienstverlening.
Wat ons onderscheidt:
Waardebepaling zonder kosten
We starten met een gratis inschatting van de waarde van uw woning – zonder verplichtingen.
Persoonlijke benadering en rust in het proces
Uw wensen staan centraal. We nemen uitgebreid de tijd om uw situatie te begrijpen en begeleiden u op een ontspannen manier.
Strategisch aan- en verkoopplan
Geen standaard aanpak, maar een zorgvuldig op maat gemaakte strategie om het maximale uit uw transactie te halen.
Eerlijkheid als kernwaarde
Wij werken transparant en hechten sterk aan betrouwbaarheid en ethisch handelen.
Kennis van zaken
U kunt rekenen op professionele begeleiding van een ervaren expert die met u meedenkt.
Gedetailleerde werkwijze
Onze processen zijn verfijnd tot in de kleinste details, zodat u profiteert van een gestroomlijnde afhandeling.
Zorg voor de koper
Wij vinden het belangrijk dat ook de koper goed wordt begeleid, zodat de gehele transactie soepel en verantwoord verloopt.
Grondige bezichtigingen
Onze rondleidingen zijn helder, informatief en afgestemd op de behoeften van potentiële kopers.
Passende courtage
Onze tarieven worden afgestemd op het object, zodat u een eerlijke prijs betaalt voor onze dienstverlening.
Opstartkosten
Naast de courtage rekenen wij opstartkosten voor de voorbereidingen en presentatie van uw woning.
Aankoopbegeleiding cadeau bij verkoopopdracht
Geeft u ons het vertrouwen voor de verkoop? Dan helpen wij u kosteloos bij het kopen van een nieuwe woning.
Ontdek het verschil van Comacon Makelaardij
Wij zetten ons volledig in voor het beste resultaat bij uw aan- of verkoop. Neem vrijblijvend contact met ons op en ervaar zelf onze betrokken en professionele aanpak.
Uw succes is ons uitgangspunt.
Nieuwste reviews
-
Turfstrooisel 6
Het was erg fijn samen te werken met Theo Cox. Een deskundige, kritische en vriendelijke makelaar die garant staat voor service voor alle pa...
-
Marvin
Een hele fijne, betrouwbare, professionele makelaar! Hij heeft ons huis snel verkocht, was duidelijk naar alle partijen en hij heeft gezorgd...
-
Mgr Aertsstraat 25
In het begin viel de serieuze interesse tegen. Maar ja, je hebt gewoon de juiste koper nodig die door sommige dingen heen kan kijken! Het is...